Mieszkanie ul. Prometeusza 3a
Prometeusza 3a, Grotniki, łódzkie
- 486 762 zł
- 57,79 m²
- 8 422,95 zł/m²
Magdalena Przybylska
Skontaktuj się
Mieszkanie ul. Prometeusza 3a
Prometeusza 3a, Grotniki, łódzkie
zaktualizowane:
25 listopada 2025
Mieszkanie ul. Prometeusza 3a
Inwestycja: Park Grotniki
Zaktualizowane: 25 listopada 2025
486 762 zł 57,79 m² 8 422,95 zł/m²
II kwartał 2026
1/2
2
-
deweloperski
Zobacz na mapie
Termin realizacji:
II kwartał 2026Piętro:
1/2Liczba pokoi:
2Miejsce postojowe:
-Stan mieszkania:
deweloperskiSzczegóły ogłoszenia
- Typ oferty: mieszkanie na sprzedaż
- Cena: 486 762 zł (8 422,95 zł/m²)
- Termin realizacji: II kwartał 2026
- Status oferty: dostępne
- Rynek: pierwotny (oferta dewelopera)
- Charakterystyka mieszkania: 57,79 m², 2 pokoje, 1 łazienka; stan: deweloperski
- Budynek: blok mieszkalny
- Rozkład mieszkania: piętro 1/2, jednopoziomowe
- Powierzchnia dodatkowa: balkon (6 m²), komórka lokatorska (2 m²)
- Kuchnia: aneks kuchenny
- Bezpieczeństwo: teren ogrodzony, monitoring
- Źródło: oferta dewelopera: Park Grotniki Sp. z o. o., zaktualizowane: 25.11.2025
- sygnatura ogłoszenia: A10
Lokalizacja
- Inwestycja: Park Grotniki
- Adres: Prometeusza 3a, Grotniki, łódzkie
- Na terenie inwestycji: plac zabaw, stacja ładowania samochodów elektrycznych, altana, pomost nad wodą
- W pobliżu żłobek, przedszkole, przystanek autobusowy, centrum handlowe, park, las, jezioro
Opis nieruchomości
2-pokojowe mieszkanie w Parku Grotniki – komfort i funkcjonalność w sercu Grotnik
Zapraszamy do zapoznania się z ofertą przestronnego (...)

Inwestycja realizowana przez:
Park Grotniki Sp. z o. o.
Magdalena Przybylska
Tuwima 22/26
Łódź 90-005
| MieszkanieA15 | 67,85 m² | 8 065,29 zł/m² | 2/2 | 3 | 547 230 zł |
| Mieszkanie | ||||
|
||||
| A15 |
| MieszkanieA01 | 66,65 m² | 8 070,07 zł/m² | parter/2 | 3 | 537 870 zł |
| Mieszkanie | ||||
|
||||
| A01 |
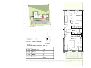
| MieszkanieA04 | 57,79 m² | 8 422,95 zł/m² | parter/2 | 2 | 486 762 zł |
| Mieszkanie | ||||
|
||||
| A04 |
| MieszkanieA07 | 66,65 m² | 8 070,07 zł/m² | 1/2 | 3 | 537 870 zł |
| Mieszkanie | ||||
|
||||
| A07 |
| MieszkanieA09 | 67,85 m² | 8 065,29 zł/m² | 1/2 | 3 | 547 230 zł |
| Mieszkanie | ||||
|
||||
| A09 |
| MieszkanieA13 | 66,65 m² | 8 070,07 zł/m² | 2/2 | 3 | 537 870 zł |
| Mieszkanie | ||||
|
||||
| A13 |
| MieszkanieA16 | 57,79 m² | 8 111,47 zł/m² | 2/2 | 2 | 468 762 zł |
| Mieszkanie | ||||
|
||||
| A16 |
| MieszkanieA17 | 55,44 m² | 8 124,68 zł/m² | 2/2 | 2 | 450 432 zł |
| Mieszkanie | ||||
|
||||
| A17 |
| MieszkanieA18 | 64,92 m² | 8 077,26 zł/m² | 2/2 | 3 | 524 376 zł |
| Mieszkanie | ||||
|
||||
| A18 |
| MieszkanieB01 | 64,23 m² | 8 080,24 zł/m² | parter/2 | 3 | 518 994 zł |
| Mieszkanie | ||||
|
||||
| B01 |
| MieszkanieB05 | 54,44 m² | 8 130,64 zł/m² | 1/2 | 2 | 442 632 zł |
| Mieszkanie | ||||
|
||||
| B05 |
| MieszkanieB06 | 68,81 m² | 8 061,59 zł/m² | 1/2 | 3 | 554 718 zł |
| Mieszkanie | ||||
|
||||
| B06 |
| MieszkanieB08 | 54,44 m² | 8 130,64 zł/m² | 2/2 | 2 | 442 632 zł |
| Mieszkanie | ||||
|
||||
| B08 |
| MieszkanieB09 | 68,81 m² | 8 061,59 zł/m² | 2/2 | 3 | 554 718 zł |
| Mieszkanie | ||||
|
||||
| B09 |
| MieszkanieC05 | 48,40 m² | 8 171,90 zł/m² | 1/2 | 2 | 395 520 zł |
| Mieszkanie | ||||
|
||||
| C05 |
| MieszkanieC06 | 39,26 m² | 8 258,48 zł/m² | 1/2 | 2 | 324 228 zł |
| Mieszkanie | ||||
|
||||
| C06 |
| MieszkanieC07 | 64,18 m² | 8 080,46 zł/m² | 1/2 | 3 | 518 604 zł |
| Mieszkanie | ||||
|
||||
| C07 |
| MieszkanieC11 | 64,18 m² | 8 080,46 zł/m² | 2/2 | 3 | 518 604 zł |
| Mieszkanie | ||||
|
||||
| C11 |
Magdalena Przybylska
799 370...
799 370 376


















